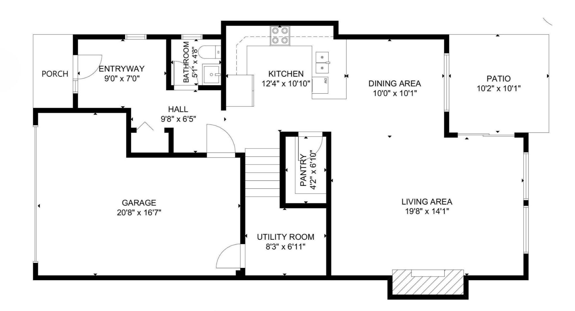
MAIN LEVEL
The modern kitchen features a LARGE PANTRY and flows effortlessly into the open-concept living and dining area. Also a 1/2 bath on the main level.
Spacious GARAGE with room for both a vehicle and your golf cart, and a generously sized utility room for all your storage needs.
Gas furnace, central A/C, and natural gas BBQ hookup make year-round living comfortable and efficient.
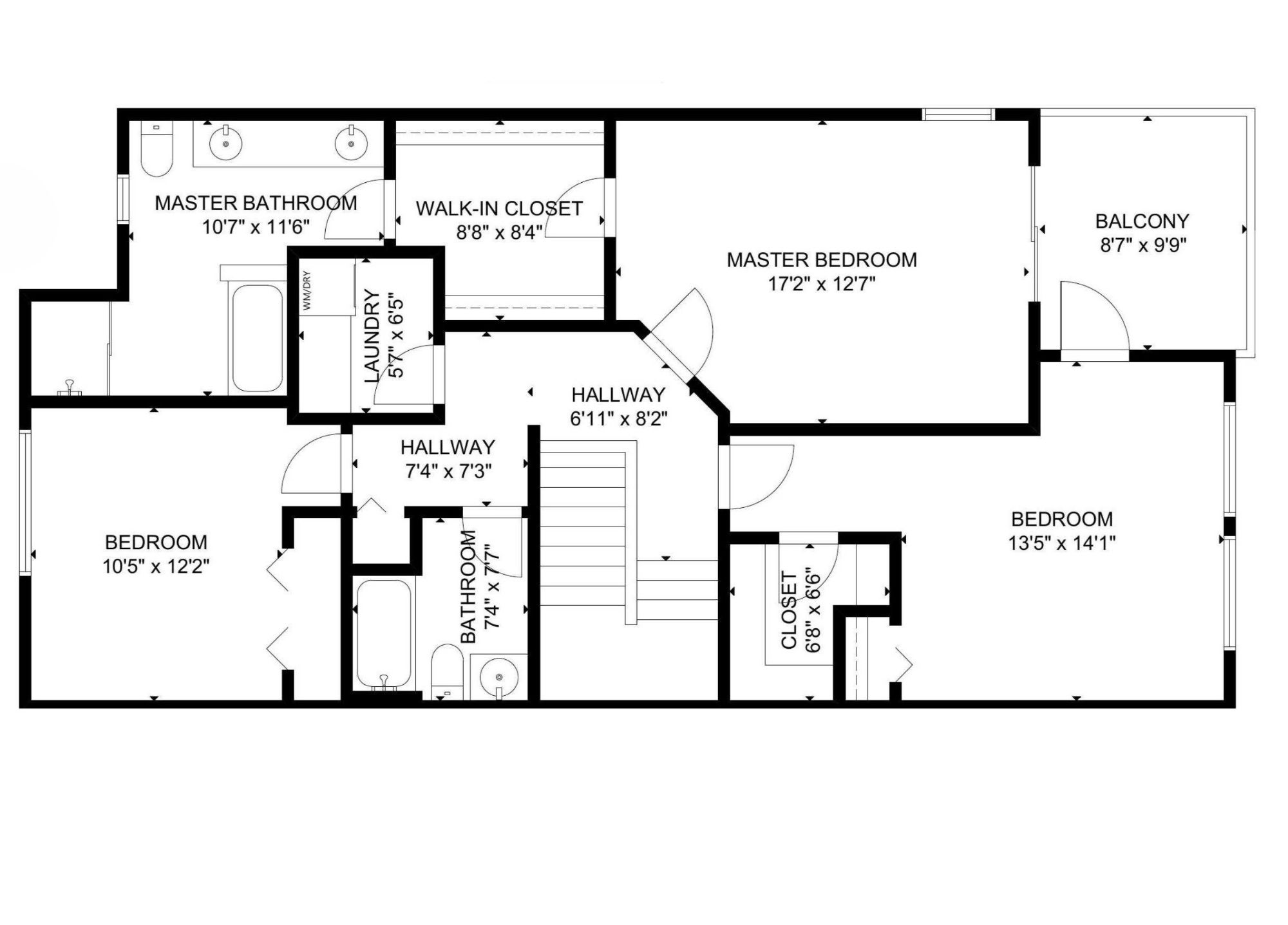
UPPER LEVEL
Upstairs, unwind on the private upper deck with its panoramic lake & mountain view.
The primary suite is a true retreat, featuring a spa-like 5-piece ensuite with dual vanities, walk-through closet, and plenty of room to relax.
Additional features include a laundry room conveniently located on the upper level,
GALLERY
PROPERTY DETAIL
Key Details
Property Type Single Family Home, Townhouse
Sub Type Townhouse
Listing Status Active
Purchase Type For Sale
Square Footage 1, 893 sqft
Price per Sqft $316
Subdivision Osoyoos
MLS Listing ID 10372004
Bedrooms 3
Half Baths 1
Condo Fees $430/mo
Year Built 2010
Property Sub-Type Townhouse
Source Association of Interior REALTORS®
Location
Province BC
Rooms
Kitchen 1.0
Extra Room 1 Second level 17'2'' x 12'7'' Primary Bedroom
Extra Room 2 Second level 5'7'' x 6'5'' Laundry room
Extra Room 3 Second level 8'2'' x 6'11'' Foyer
Extra Room 4 Second level 12'2'' x 10'5'' Foyer
Extra Room 5 Second level 7'4'' x 7'3'' Foyer
Extra Room 6 Second level Measurements not available 5pc Ensuite bath
Building
Lot Description Landscaped
Story 1.5
Sewer Municipal sewage system
Interior
Heating Forced air, See remarks
Cooling Central air conditioning
Flooring Mixed Flooring
Fireplaces Number 1
Fireplaces Type Unknown
Exterior
Parking Features Yes
Garage Spaces 1.0
Garage Description 1
Community Features Pets Allowed With Restrictions, Rentals Allowed
View Y/N Yes
View Mountain view
Roof Type Unknown
Total Parking Spaces 1
Private Pool No
Others
Ownership Strata
SIMILAR HOMES FOR SALE
Check for similar Single Family Home, Townhouses at price around $599,900 in Osoyoos,BC
CONTACT











